Costa de Barcelona · El Maresme · Premià de Dalt
Planta baja de nueva construcción situado en Premià de Dalt.
Premià de Dalt es un pueblo costero con una gran calidad de vida en el Maresme, un entrono único rodeado de naturaleza y playas de primer nivel. La ubicación de la promoción te permite acceder rápidamente al centro de Premià y disponer de una gran variedad de servicios y comodidades de todo tipo. Premià de Dalt dispone de rápidos accesos a Barcelona, situada a 20 km, a través de la Autopista del Maresme, así como diferentes conexiones en transporte público. La estación de tren de cercanías se sitúa a solo 10 minutos en coche desde la promoción o a 15 en autobús con la línea regular de Premià.
Finca situada cerca del Parc Natural de la Serralada del Litoral, ideal para practicar deporte al aire libre y explorar el patrimonio natural del entorno con vistas panorámicas espectaculares.
El conjunto Residencial está formado por 36 viviendas de 2 y 3 dormitorios distribuidas en 4 bloques. Además, una zona comunitaria cuidadosamente diseñada para proporcionar el máximo bienestar. En este espacio se encuentra una piscina rodeada de áreas ajardinadas.
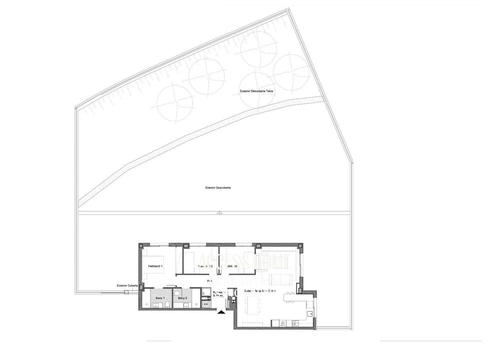
Esta planta baja dispone de 99m2 construidos, amplia terraza de 285m2 y jardín con desnivel de 156m2.
Dispone de salón comedor con cocina abierta y salida al exterior, sala de lavandería, tres habitaciones y dos baños completos.
Con materiales de primera calidad, esta promoción ofrece un bajo consumo energético, con un sistema de climatización por aerotermia.
El precio de venta incluye dos plazas de aparcamiento y un trastero.
Fecha prevista para la entrega Julio 2026.
** Fotografías y planos NO contractuales.
¿Interesado en esta propiedad?
Contáctenos para recibir más información o concertar una visita privada.
Nuestro equipo estará encantado de asesorarle y acompañarle en todo el proceso.
ACCESS HOME REAL ESTATE